Баня Викинг 8м
1 182 990 ₽
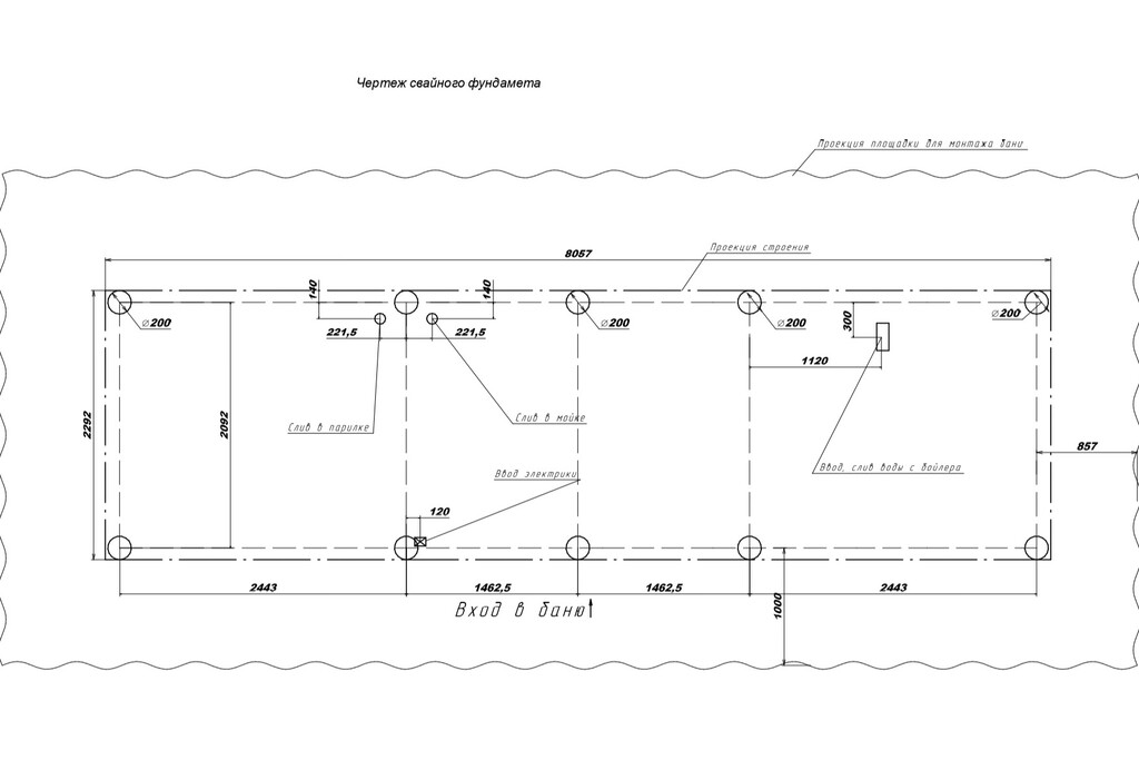
Баня Викинг 8м состоит из пяти помещений: парилки, комнаты отдыха, моечного отделения, туалета и бойлерной. Опционально добавляется крыльцо (предбанник). Поставляется в собранном виде (два модуля собираются на производстве и стыкуются на участке).
-
Рассчитайте комплектацию и стоимость
Вы можете сделать точный расчет стоимости бани и сделать заказ самостоятельно. Нажмите на каждый пункт для выбора опций.
Выберите вариант комплектации
Выберите условия поставки
Выберите материал
Выберите расположение парного отделения
Выберите расположение парного отделения
Выберите тип печи
-
Grill’D Bochky Long + проходной узел
В базовой комплектации. Grill’D Bochky Long с внешней топкой. Загрузка - 40 кг камней. Сталь повышенной прочности
Дополнительно к печи
Выберите входную дверь
Выберите окна
-
Два окна в парилку 300х400
-
Выберите дополнительные опции
-
Цвета кровли
- +
- +
- +
-
-
Выберите цвет внешней обработки и количество слоев
Количество слоев внешней обработки
Цвет внешней обработки
Цвет торцов и наличников
Цвет торцов и наличников
Описание
Каркас
- Стены, донышки, перегородки: еловый или кедровый профиль толщиной 42х92 мм, влажностью 10%
- Пол — сращенный еловый профиль толщиной 42х92 мм, влажностью 10%
- Внешняя обработка антисептиком в один слой (при поставке изделия в готовом виде или со сборкой на участке)
- Наличники на окнах и дверях. Цвет наличников: белый (база) или черный
- Широкие наличники на торцах. Цвет наличников: белый (база) или черный
- Решетки на донышках вверху. Цвет решеток: белый (база) или черный
Кровля
- Крыша из гибкой черепицы Döcke PIE или Технониколь. Цвет коричневый (серый и красный за доп. плату)
Печной узел
- Дровяная печь Grill’D Bochky Long, топка печи из комнаты отдыха
- Пожаробезопасное многослойное основание — сэндвич под печь из нержавеющей стали и минерита
- Защита от нагрева из минерита
- Камни для печи (в подарок)

Дымоход
- Дымоход черный в сборе, длина дымохода 1500 мм, диаметр дымохода 250 мм
- Проходной узел под дымоход из фланца из нержавеющей стали, термоизоляции, резинового уплотнителя с хомутом

Помещения
- Парилка (Вариант: максимальный, средний, минимальный)
- Комната отдыха (Вариант: максимальный, средний, минимальный)
- Душевая (Вариант: максимальный, средний)
- Бойлерная (Вариант: максимальный)
Двери
- Входная дверь ПВХ двустворчатая с панорамным стеклопакетом 1900х1320мм. Цвет двери: белый (база) или ламинация в черный цвет
- Стеклянная матовая дверь в парилку 1640х605мм
- Стеклянная матовая дверь в моечное отделение 1640х605мм (Вариант: максимальный, средний)
- Жалюзийная дверь в бойлерный отсек 1800х500 мм (Вариант: максимальный)
Парное отделение
- Проливной пол со сливом в желоб с возможностью отвода воды от бани
- Полки из липы согласно схемы расположения, полки не соприкасаются с полом
- Трапик на пол из ели
- Трапики на пол из ели (все трапики поднимаются для доступа к сливному поддону)
- Светильник банный IP54 с абажуром (2 шт.)
- Окно 300х400 мм — 2 шт.
- Вентиляционный клапан D100 мм с возможностью регулировки
Комната отдыха
- Полки из липы (Рундуки из ели) — ящики для вещей согласно схемы расположения
- Стол 1300х600 мм из щита, прикрепленный к стене (с опцией «Полка с ящиками в комнате отдыха» откидной на петлях)
- Окно ПВХ 1250х780 мм со стеклопакетом и москитной сеткой. Цвет окна: белый (база) или ламинация в черный цвет
- Светильник с абажуром
- Розетка двойная под столом
- Вентиляционный клапан D100 мм с возможностью регулировки
- Электрика: Бокс, УЗО, автоматы 16А и 10А на группы светильников и розеток, выключатели освещения: парилка, моечное отделение, комната отдыха
- Электрика спрятана в ниши, видимых проводов нет
Моечное отделение
- Проливной пол со сливом в желоб с возможностью отвода воды от бани
- Трапики на пол из ели (все трапики поднимаются для доступа к сливному поддону)
- Светильник банный IP54
Детали
| Бренд | Bochky |
|---|---|
| Количество помещений | 5 |
| Общая длина (наружный размер) | 8056 мм |
| Высота | 2776 мм |
| Ширина | 2434 мм |




